Biệt thự mái Nhật 2 tầng tại Yên Thành, Nghệ An, là một biểu tượng của sự hài hòa giữa kiến trúc hiện đại và thiên nhiên. Với thiết kế tinh tế, công trình không chỉ mang đến không gian sống tiện nghi mà còn tạo dấu ấn nghệ thuật nổi bật.
Sự kết hợp giữa nét đẹp truyền thống và tính năng hiện đại khiến ngôi nhà trở thành nơi lý tưởng để thư giãn và tận hưởng cuộc sống. Hãy cùng khám phá những điểm nhấn đặc biệt trong thiết kế của biệt thự này!

Thông tin biệt thự mái nhật 2 tầng tại Yên Thành – Nghệ An
- Thiết kế biệt thự mái nhật 2 tầng tại Yên Thành – Nghệ An M464
- Chủ đầu tư: Anh Thành – Địa điểm xây dựng: Yên Thành Nghệ An
- Diện tích khu đất: Đất vườn rộng – diện tích xây dựng: 10×14
- Tầng 1: 1 phòng khách, 1 bếp ăn, 1 phòng ngủ khép kín, 1 phòng ngủ thường, nhà vệ sinh chung + khu giặt phơi, có gara để xe
- Tầng 2: 2 phòng ngủ, 1 phòng thờ, 1 phòng học, 1 nhà vệ sinh chung, khu giặt phơi, kho chứa đồ
Mặt bằng công năng biệt thự mái nhật 2 tầng tại Yên Thành – Nghệ An
Mặt bằng tầng 1

Tầng 1 của biệt thự mái Nhật 2 tầng tại Yên Thành được thiết kế với sự chú trọng đến công năng và tiện nghi. Với một phòng khách rộng rãi, không gian này trở thành nơi lý tưởng để tiếp đón bạn bè và gia đình, mang đến cảm giác sang trọng và ấm cúng. Bên cạnh đó, bếp ăn được thiết kế mở, tạo sự liên kết giữa các không gian, giúp việc nấu nướng trở nên thuận tiện và dễ dàng hơn.
Ngôi nhà còn có một phòng ngủ khép kín, mang lại sự riêng tư và thoải mái cho chủ nhân, trong khi phòng ngủ thường dành cho các thành viên khác trong gia đình, đảm bảo không gian nghỉ ngơi ấm cúng. Nhà vệ sinh chung được bố trí hợp lý, phục vụ nhu cầu sinh hoạt hàng ngày một cách tiện lợi.
Đặc biệt, khu giặt phơi được thiết kế thông minh, giúp tiết kiệm diện tích và giữ cho không gian luôn gọn gàng.
Cuối cùng, gara để xe được bố trí an toàn, bảo vệ phương tiện và tạo sự thuận tiện trong việc đỗ xe. Tổng thể, thiết kế tầng 1 không chỉ đáp ứng đầy đủ nhu cầu sinh hoạt mà còn mang đến một không gian sống thoải mái và tiện nghi cho gia đình.
>> Có thể bạn quan tâm: Tổng hợp các mẫu thiết kế biệt thự hiện đại đầy đủ chủng loại và phong cách
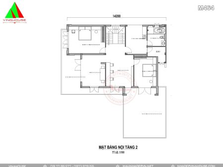
Mặt bằng tầng 2

Tầng 2 của biệt thự mái Nhật 2 tầng tại Yên Thành được thiết kế hợp lý, mang đến không gian sống tiện nghi và thoải mái. Hai phòng ngủ rộng rãi, ấm cúng, tạo điều kiện lý tưởng cho các thành viên trong gia đình nghỉ ngơi. Khu vực phòng thờ được bố trí trang trọng, tôn nghiêm, phù hợp cho việc thờ cúng và lưu giữ những giá trị truyền thống.
Ngoài ra, phòng học được thiết kế yên tĩnh, giúp kích thích sự tập trung và sáng tạo, rất phù hợp cho việc học tập và làm việc. Nhà vệ sinh chung tiện lợi, phục vụ nhu cầu sinh hoạt hàng ngày của mọi người, đảm bảo sự thoải mái và vệ sinh. Khu giặt phơi được bố trí thông minh, tiết kiệm diện tích và giữ cho ngôi nhà luôn gọn gàng. Cuối cùng, kho chứa đồ cung cấp không gian lưu trữ hợp lý, giúp tổ chức đồ đạc một cách khoa học. Tất cả những yếu tố này tạo nên một tầng 2 hoàn hảo, đáp ứng đầy đủ nhu cầu sống của gia đình.
>> Xem thêm: Các mẫu biệt thự 2 tầng sang trọng bậc nhất hiện nay
Phối cảnh 3D biệt thự mái nhật 2 tầng tại Yên Thành – Nghệ An
Phối cảnh biệt thự 2 tầng nổi bật với mái Nhật ngói xanh, tạo điểm nhấn thanh thoát và hiện đại. Tông màu chủ đạo là trắng tinh khôi, kết hợp hài hòa với đá vân trắng, mang đến vẻ đẹp sang trọng và thanh lịch.

Cửa chính bằng gỗ mang đến sự ấm áp và gần gũi, trong khi cửa phụ bằng kính khung sắt không chỉ tăng cường tính an toàn mà còn tạo ra không gian mở, kết nối giữa nội thất và thiên nhiên. Ban công rộng rãi, được làm bằng kính cường lực, không chỉ tạo cảm giác thoáng đãng mà còn cho phép ánh sáng tự nhiên tràn ngập vào bên trong. Tất cả các yếu tố này kết hợp với nhau, tạo nên một ngôi biệt thự vừa tinh tế vừa đẳng cấp, lý tưởng cho cuộc sống hiện đại.

Hệ thống tường cổng 4 cánh chính và 1 cánh phụ được thiết kế tinh xảo với họa tiết gỗ kết hợp khung sắt, tạo nên một vẻ đẹp độc đáo và hiện đại. Tường rào đá xám nổi bật, không chỉ đảm bảo tính an toàn mà còn mang lại sự sang trọng cho không gian.

Tiểu cảnh được bố trí một cách đẹp mắt, với một hồ cá tinh tế, tạo điểm nhấn thư giãn và sinh động cho khu vườn. Sân vườn được trồng nhiều cây xanh, mang đến không khí trong lành và tươi mát, lý tưởng cho những buổi chiều thư giãn.



Đặc biệt, gara xe được tích hợp khéo léo, vừa tiện nghi vừa giữ cho không gian luôn gọn gàng. Tất cả những yếu tố này hòa quyện lại, tạo nên một bức tranh tuyệt đẹp cho ngôi nhà, vừa gần gũi với thiên nhiên, vừa hiện đại và ấn tượng.
Phối cảnh nội thất biệt thự mái nhật 2 tầng tại Yên Thành – Nghệ An
Phòng khách được thiết kế hiện đại với tông màu nâu ấm, tạo cảm giác thân thiện và ấm cúng. Nổi bật trong không gian là bộ sofa sang trọng, được bài trí tinh tế, mang đến sự thoải mái cho gia đình và khách mời.




Không gian còn được trang bị đầy đủ tiện nghi, từ kệ tivi đến các yếu tố trang trí, tất cả đều hòa quyện một cách hoàn hảo để tạo nên một nơi tiếp đón lý tưởng và ấm áp, là trung tâm giao lưu và kết nối của cả gia đình.
Bếp ăn được bố trí tinh tế với cửa sổ lớn đón ánh sáng tự nhiên, tạo không gian thoáng đãng và dễ chịu cho những bữa sáng sum vầy. Bàn ăn được sắp xếp hợp lý, là nơi lý tưởng để cả gia đình quây quần bên nhau.



Không gian bếp còn được trang bị đầy đủ tiện nghi, từ các thiết bị hiện đại cho đến tủ bếp thông minh, giúp việc nấu nướng trở nên thuận tiện và dễ dàng hơn. Tất cả các yếu tố này kết hợp lại, tạo nên một bếp ăn không chỉ đẹp mắt mà còn ấm cúng và chức năng.
Phòng ngủ được thiết kế hết sức hiện đại với gam màu xám trắng tinh tế, mang lại cảm giác nhẹ nhàng và thư giãn. Không gian nổi bật với bàn trang điểm thanh lịch, tủ quần áo thông minh và giường nệm êm ái, tất cả đều hòa quyện trong cùng một tông màu.



Đặc biệt, cửa kính được bố trí hợp lý, giúp đón ánh sáng tự nhiên tràn ngập vào không gian, tạo cảm giác thoáng đãng và ấm áp. Ánh sáng tự nhiên không chỉ làm nổi bật vẻ đẹp của nội thất mà còn góp phần mang lại sự tươi mới cho căn phòng. Sự sắp xếp hợp lý này không chỉ tối ưu hóa diện tích mà còn tạo nên một không gian nghỉ ngơi thoải mái và tiện nghi, lý tưởng cho những giây phút thư giãn và tái tạo năng lượng.



Phòng ngủ 3 và 4 được thiết kế riêng cho các con, sử dụng tông màu xanh và hồng tươi sáng, tạo không gian vui tươi và năng động. Mỗi phòng đều được trang bị đầy đủ tiện nghi như bàn học, tủ quần áo và giường nệm thoải mái. Cửa kính lớn giúp đón ánh sáng tự nhiên, mang đến không khí trong lành và tươi mới, lý tưởng cho việc học tập và nghỉ ngơi của các bé.





Ngoài ra, ngôi nhà còn được thiết kế với một phòng học riêng, đồng thời cũng là không gian làm việc chung. Phòng này được trang bị bàn ghế phù hợp, kệ sách và cửa sổ lớn để đón ánh sáng tự nhiên, tạo cảm giác thoải mái và tập trung. Đây là nơi lý tưởng để cả gia đình có thể học tập, làm việc và phát triển ý tưởng một cách hiệu quả.


Khu giặt phơi được bố trí hợp lý, tạo không gian gọn gàng và tiện lợi cho việc giặt giũ hàng ngày. Nơi đây được thiết kế thông thoáng, giúp quần áo nhanh khô và luôn sạch sẽ.

Ngoài ra, ngôi nhà còn có 3 nhà vệ sinh hiện đại, được trang bị đầy đủ tiện nghi với thiết kế tinh tế. Mỗi nhà vệ sinh đều có cửa sổ đón ánh sáng và không khí, tạo cảm giác thoải mái và vệ sinh. Sự bố trí này không chỉ đảm bảo tính tiện lợi mà còn nâng cao chất lượng cuộc sống cho mọi thành viên trong gia đình.





>> Xem thêm: Các mẫu biệt thự hot nhất 2025
Bản vẽ thiết kế biệt thự mái nhật 2 tầng tại Yên Thành – Nghệ An
- Bản vẽ chi tiết kiến trúc ( đầy đủ các mặt cắt, mặt đứng, các bản vẽ chi tiết công trình).
- Bản vẽ kết cấu công trình.
- Hình ảnh phối cảnh 3D ngoại thất.
- Bản vẽ điện + cấp thoát nước.
- Dự toán công trình: chi tiết chi phí xây dựng, thống kê vật tư công trình.
- Toàn bộ hồ sơ thiết kế công năng các phòng và kiến trúc đều được tư vấn hợp theo Phong thủy và tuổi của chủ đầu tư. Kích thước các phòng, chiều cao nhà và kích thước cửa đều theo kích thước phong thủy.
Với mục tiêu xây dựng không gian sống tuyệt vời nhất cho khách hàng, chúng tôi luôn lắng nghe và thấu hiểu để mang đến những điểm đặc biệt nhất. Mỗi công trình của Vinahouse là một tác phẩm tinh thần, chúng tôi đặt trọn tâm huyết và sức lực vào từng dự án.
Hãy tin tưởng và lựa chọn Vinahouse là đối tác đồng hành của bạn. Liên hệ ngay qua số hotline để nhận được sự tư vấn và báo giá hoàn toàn miễn phí. Hãy để chúng tôi giúp bạn biến ước mơ thành hiện thực!
>> Xem thêm: Top 100 mẫu nhà cấp 4 mái Thái đẹp nhất tại Vinahouse năm 2024.
Công ty TNHH MTV Tư Vấn Thiết Kế Xây Dựng Vinahouse
- VP Miền Nam : Số 1A8 , Nguyễn Văn Tiên, KP 11, P Tân Phong, TP Biên Hòa, Đồng Nai
- VP Miền Trung: số 62 đường Yên Dũng Thượng, P Hưng Dũng, TP Vinh, Nghệ An
- Hotline: 0917799577 – 0973979155
- Email: vinahouse2012@gmail.com








































































