Biệt thự vườn 1 tầng mái thái luôn là lựa chọn hàng đầu của các gia đình có khuôn viên đất vườn rộng. Biệt thự 1 tầng đẹp mái thái 12×14 vừa được thiết kế cho gia đình anh Thắng ở Bình Dương. Mẫu nhà vườn đẹp kiến trúc mái thái hiện đại bên trong có 3 phòng ngủ với kinh phí đầu tư 1,3 tỷ mời anh chị tham khảo.

Biệt thự vườn 1 tầng mái thái 3 phòng ngủ 12×14 ở Bình Dương
Thông tin biệt thự vườn 1 tầng mái thái 3 phòng ngủ
Tham khảo thêm: Các mẫu nhà cấp 4 mái thái đẹp
- Mẫu nhà vườn 1 tầng đẹp: M186
- Chủ đầu tư: anh Tạ Minh Thắng
- Địa điểm xây dựng: huyện Phú Giáo, tỉnh Bình Dương
- Diện tích khu đất: đất vườn rộng
- Diện tích xây dựng: 12×14
- Công năng sử dụng: Phòng khách + bếp ăn + phòng làm việc + 3 phòng ngủ + 2WC + khu giặt phơi
- Kinh phí đầu tư: 1,3 tỷ
- Thời điểm thiết kế: Tháng 9 năm 2019
- Liên hệ tư vấn: 0973 979 155 – 091 77 99 577

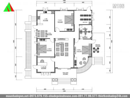
Bản vẽ mặt bằng nhà vườn mái thái 3 phòng ngủ 12×14
Không gian bố trí bên trong được thiết kế dựa trên nhu cầu sử dụng của gia đình, đồng thời tuân thủ phong thủy mang lại sự yên tâm.
Điểm nhấn ở đây là phòng ngủ chính có cửa kính vòm lớn như các resort khu nghỉ dưỡng, đồng thời 2 bên hông nhà có sảnh hành lang trồng hoa mang lại không gian sân vườn thơ mộng.
Phòng ngủ chính khép kín có nhà vệ sinh riêng, có cửa ra sảnh phụ thư giãn, ở bên trái nhìn từ ngoài vào là phòng làm việc, kế sau là 1 phòng ngủ và khu bếp ăn ở cuối. Phòng khách được thiết kế nằm ở trung tâm cửa chính đi vào, phía sau là 1 phòng ngủ. và cuối nhà bên góc phải là 1 nhà vệ sinh chung là khu giặt phơi.

Hồ sơ thiết kế biệt thự vườn mái thái 1 tầng 3 phòng ngủ bao gồm:
- Bản vẽ chi tiết kiến trúc và phối cảnh ngoại thất 3D
- Bản vẽ kết cấu công trình
- Bản vẽ điện nước
- Dự toán công trình: chi tiết chi phí xây dựng – Tổng mức đầu tư
- Toàn bộ hồ sơ thiết kế công năng các phòng và kiến trúc đều được tư vấn hợp theo Phong thủy và tuổi của chủ đầu tư. Kích thước các phòng, chiều cao nhà và kích thước cửa đều theo kích thước phong thủy.



Tham khảo thêm: Các mẫu Biệt Thự Vườn 1 Tầng đẹp
Để được tư vấn hãy liên hệ tới 0973 979 155. Đội ngũ kiến trúc sư Vinahouse với nhiều năm kinh nghiệm trong lĩnh vực thiết kế thi công mẫu nhà đẹp VN với chuyên môn và thẩm mỹ cao cam kết sẽ sáng tạo hết mình mang lại không gian sống lý tưởng cho gia đình bạn.







