Việc tính toán diện tích xây dựng nhà ở không chỉ là bước quan trọng trong quá trình thiết kế mà còn ảnh hưởng trực tiếp đến chi phí và tính khả thi của dự án. Dù bạn là chủ đầu tư lần đầu hay một người có kinh nghiệm, việc nắm vững các phương pháp tính diện tích là rất cần thiết để đảm bảo rằng ngôi nhà của bạn không chỉ đáp ứng đầy đủ nhu cầu mà còn tuân thủ các quy định xây dựng.
Trong bài viết này, chúng tôi sẽ cung cấp cho bạn những hướng dẫn chi tiết và chính xác nhất về cách tính diện tích xây dựng, giúp bạn có cái nhìn rõ ràng và dễ dàng trong từng bước thực hiện. Hãy cùng khám phá để chuẩn bị cho hành trình xây dựng ngôi nhà mơ ước của bạn!
Diện tích xây dựng là gì?

Diện tích xây dựng là diện tích có hao phí chi phí xây dựng, diện tích này bao gồm những diện tích được thể hiện trong giấy phép xây dựng và những phần diện tích không được thể hiện trong giấy phép xây dựng, nhưng tại đó có hao phí chi phí xây dựng như xây tường, lát gạch…
Diện tích sàn là gì?
Diện tích sàn là diện tích đo từ mép ngoài của các tường bao quanh một tầng của công trình, bao gồm tất cả các khu vực sử dụng như hành lang, thông tầng, lô gia, v.v.
Ví dụ, nếu tầng trệt của một ngôi nhà có kích thước 4m x 12m, thì diện tích sàn của tầng đó là 48m². Nếu ngôi nhà có nhiều tầng, tổng diện tích sàn sẽ được tính bằng tổng diện tích sàn của tất cả các tầng.
Cách tính diện tích xây dựng nhà ở
Diện tích xây dựng (DTXD) là tổng diện tích mà công trình chiếm dụng trên mặt đất và các phần mở rộng khác. Để tính diện tích xây dựng, bạn cần thực hiện các bước sau:
1. Tính diện tích sàn
Đầu tiên, tính diện tích sàn của mỗi tầng bằng cách nhân chiều dài với chiều rộng của tầng đó. Tổng diện tích sàn của tất cả các tầng sẽ là cơ sở để tính diện tích xây dựng.
2. Tính các diện tích khác
Bên cạnh diện tích sàn, bạn cũng cần tính các diện tích khác như:
- Móng: Diện tích phần móng của công trình.
- Mái: Diện tích mái bê tông cốt thép hoặc các loại mái khác.
- Sân, Ban Công, Lô Gia: Các phần không gian ngoài sàn chính, bao gồm sân, ban công, và lô gia.
- Tầng Hầm (Nếu Có): Diện tích của các tầng hầm.
3. Áp dụng hệ số tính toán
Các phần diện tích khác như móng, mái, và tầng hầm thường được tính với hệ số khác nhau để đưa ra tổng diện tích xây dựng. Ví dụ, phần móng có thể được tính với hệ số 40% và mái bê tông cốt thép có thể được tính với hệ số 50% của tổng diện tích sàn.
4. Tính toán tổng diện tích xây dựng
Công thức tính diện tích xây dựng là:
Diện tích xây dựng = Diện tích sàn + Diện tích các phần khác
Ví dụ: Nếu bạn có một mảnh đất 100m² và xây dựng nhà trệt 2 lầu, với diện tích sàn mỗi tầng là 100m², tổng diện tích sàn là 300m². Thêm vào đó, tính diện tích phần móng (40% của tổng diện tích sàn) và mái (50% của tổng diện tích sàn), tổng diện tích xây dựng khoảng 390m².
Cách tính phần gia cố nền đất yếu và các chi tiết khác cho ngôi nhà của bạn
Tùy vào điều kiện đất, điều kiện thi công mà sẽ quyết định sử dụng loại hình gia cố khác nhau như sử dụng gỗ hoặc cốt thép. Nếu sử dụng phương pháp đổ bê tông cốt thép thì sẽ tính 20% diện tích.
1. Phần móng
Tùy thuộc vào loại móng được sử dụng, hệ số tính toán sẽ khác nhau theo tiêu chuẩn dưới đây:
- Móng đơn: Tính toán 20% diện tích.
- Đài móng trên nền cọc bê tông cốt thép ép tải:
- Nếu diện tích sàn nhỏ hơn 150 m²: Tính 40% diện tích.
- Nếu diện tích sàn lớn hơn 150 m²: Tính 30% diện tích.
- Nếu diện tích sàn dưới 50 m² hoặc bề ngang nhỏ hơn 4 m: Tính 50% diện tích.
- Đài móng trên nền cọc khoan nhồi hoặc cọc bê tông cốt thép ép neo: Tính 40% diện tích.
- Móng băng:
- Nếu diện tích sàn dưới 50 m²: Tính 70% diện tích.
- Nếu diện tích sàn từ 50 đến 100 m²: Tính 60% diện tích.
- Nếu diện tích sàn trên 100 m²: Tính 50% diện tích.
- Móng bè: Tính 100% diện tích.

Bài toán thực tế:
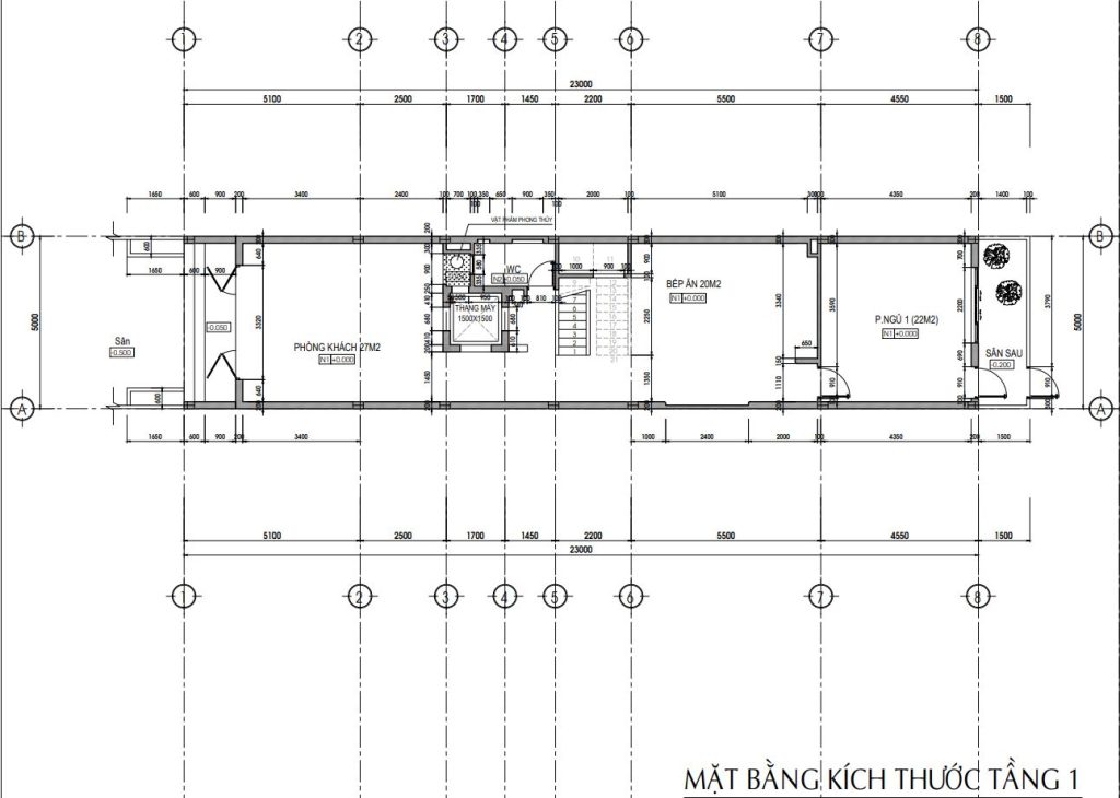
Trong trường hợp ngôi nhà xây hết diện tích đất, không có sân trước và sau, kích thước tính toán cho phần móng sẽ dựa vào số liệu lớn hơn hoặc trung bình cộng. Cụ thể, chiều dài của mặt bằng móng sẽ được tính là 23 m và chiều rộng là 5 m. Để đảm bảo tính chính xác, kiến trúc sư sẽ sử dụng phần mềm để thực hiện các phép tính cụ thể.
Diện tích theo hệ số được tính: Chiều dài x Chiều rộng x Hệ Số (23 x 5 x 0.6 = 54.99). Vì là móng băng trên 100m2 nên hệ số: 0.5 tức 50% diện tích.

Hệ số được nêu ở đây đơn giản có thể hiểu là chi phí xây dựng cho từng loại móng, tính theo diện tích và đơn giá m². Ví dụ, đối với móng băng cho ngôi nhà có kích thước 23 x 5m, diện tích sẽ là 57,5 m². Với đơn giá xây thô là 3 triệu 600 nghìn đồng/m², chi phí cho phần móng sẽ khoảng 198 triệu đồng.
Trong xây dựng nhà phố, hai loại móng phổ biến nhất là móng cọc và móng băng. Bạn có thể tìm hiểu thêm về hai loại móng này qua bài viết Tại đây
Lưu ý: Nếu phần sân trước và sau có xây dựng cột, tường rào, hoặc lát gạch làm cổng, thì việc đổ móng là cần thiết để đảm bảo độ bền cho công trình.
Ví dụ: Với diện tích đất 5x20m, khi xây dựng nhà với diện tích 5x15m và sân có kích thước 5x5m, thì cần thực hiện đổ móng cho toàn bộ diện tích đất 5x20m.
2. Phần nhà


Hệ số phần nhà được tính dựa theo tiêu chuẩn sau:
- Phần diện tích có mái che phía trên tính 100% diện tích.
- Phần diện tích không có mái che nhưng có lát gạch nền tính 70% diện tích.(Phần ban công).
- Phần diện tích lô gia tính 100% diện tích.

Phần móng sẽ tính cả chi phí sân như đã nói ở trên, tầng trệt sẽ có hao phí làm sân như lát gạch xây tường bao…Cách tính chi phí phần sân Vinahouse giới thiệu bên dưới.
3. Phần sân tầng trệt
- Dưới 15m2 có đổ cột, đổ đà kiềng, xây tường rào, lát gạch nền tính 100%.
- Dưới 30m2 có đổ cột, đổ đà kiềng, xây tường rào, lát gạch nền tính 70%.
- Trên 30m2 có đổ cột, đổ đà kiềng, xây tường rào, lát gạch nền tính 50%.
Hướng dẫn tính diện tích tầng lửng

Mặt bằng tầng lửng chia thành diện tích sàn và diện tích thông tầng. (Nguồn tham khảo)
- Chiều dài sàn tầng lửng: 2.4 + 2.25 + 3.72 + 1.0 = 9.37. Tính 100% diện tích.
- Chiều dài thông tầng: 3.5 + 1.6 = 5.1. Tính 50% diện tích.

Để tính diện tích tầng lửng, chủ đầu tư có thể tham khảo cách tính như sau:
- Diện tích sàn lửng: Chiếm khoảng 65% diện tích sàn tầng trệt.
- Diện tích thông tầng: Chiếm khoảng 35%.
Đây là quy định chung, nhưng tùy vào khu vực, diện tích sàn tầng lửng có thể được phép xây dựng vượt quá 65%.
Cách tính này là phương pháp đơn giản trước khi có thiết kế hoàn chỉnh. Để có báo giá chính xác cho thi công, diện tích sàn sẽ được tính chi tiết hơn, bao gồm cả việc trừ diện tích thông tầng và phần dầm (đã được bôi vàng trong bản vẽ).
Hy vọng thông tin này sẽ giúp bạn hiểu rõ hơn về cách tính diện tích tầng lửng trong thiết kế nhà ở.
4. Ô trống trong nhà (thông tầng)
Diện tích của giếng trời và thông tầng ở tầng lửng được tính như sau:
- Diện tích dưới 8 m²: Tính 100% diện tích như sàn bình thường. Giếng trời thường có diện tích không vượt quá 8 m².
- Diện tích lớn hơn 8 m²: Tính 50% diện tích. Thông tầng lửng thường có diện tích lớn hơn 8 m².
Vì thông tầng có diện tích rộng và cần xây dựng tường cùng hệ kết cấu riêng, nên diện tích này cũng được tính 50%.
Cách tính này giúp đảm bảo tính hợp lý trong việc đánh giá tổng diện tích sử dụng của công trình.

5. Phần ban công
- Ban công có mái che:
- Nếu tường bao hai bên cao dưới 1,1 m: Tính 70% diện tích.
- Nếu tường bao kín cao trên 1,1 m: Tính 100% diện tích.
- Ban công nhà tân cổ điển (có phào chỉ, cột, phù điêu): Tính 100% diện tích.
- Ban công không có mái che:
- Nếu tường bao hai bên cao dưới 1,1 m: Tính 50% diện tích.
- Lô gia: Tính 100% diện tích.
Cách tính này giúp xác định rõ hơn diện tích sử dụng cho từng loại ban công và lô gia trong thiết kế.

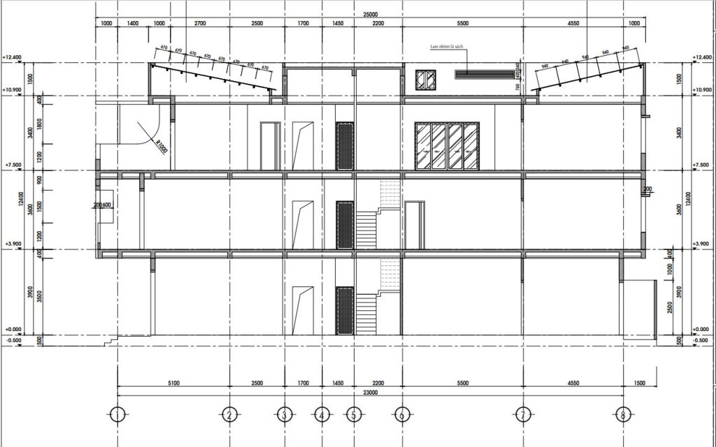
Chiều dài tầng 4: 2,7 + 2.5 +1.7 + 1.45 + 2.2 + 5.5+ 4.55 + 0.5 = 21.1m. Phần diện tích 1m ở đây là mái che phía trên khi bước nhà ra sân được tính như phần nhà. Chiều rộng 5m.
Diện tích sân thượng: 2m4 – 1 chỉ còn 1m4. Hệ số phần sân thượng phía trước là 70% diện tích.


6. Phần Mái

Chiều dài mái 1.7 + 1.45 + 2.2 + 5.5 = 10,85 m. Chiều rộng 5m.
Hệ số với mái bê tông cốt thép, không lát gạch là: 0.5. Diện tích xây dựng mái: 10.85 x 5 x 0.5 = 9.12m.
Diện tích sàn mái thường cộng thêm diện tích seno thoát nước mái thông thường được ra khoảng 0.9m hai bên là 1m8.
Hướng dẫn tính diện tích mái và Seno trang trí
- Seno trang trí mặt tiền: Thường có độ dài từ 0,8 m đến 1,4 m, tùy thuộc vào thiết kế cụ thể.
- Mái bê tông cốt thép:
- Không lát gạch, tường bao mái xây cao 300mm: Tính 50% diện tích của mái.
- Có lát gạch: Tính 60% diện tích của mái.
- Mái ngói vì kèo sắt: Tính 70% diện tích của mái. Đối với mái thái, tính theo chiều dài và chiều rộng của mái theo phương chéo.
- Mái bê tông dán ngói: Tính 100% diện tích của mái.
- Mái tôn: Tính 30% diện tích của mái.
Trong báo giá chính xác cho thi công xây thô, diện tích mái sẽ được tính bằng tổng diện tích mái trừ đi diện tích của ô trống sân thượng trước và sau, bao gồm cả dầm hai bên sân thượng. Seno trang trí mặt tiền được tính tương tự như diện tích tầng lửng.
7. Phần tầng hầm (Tính riêng so với móng)
- Hầm có độ sâu nhỏ hơn 1.7m so với cao độ đỉnh ram hầm tính 170% diện tích.
- Hầm có độ sâu nhỏ hơn 2.0m so với cao độ đỉnh ram hầm tính 200% diện tích.
- Hầm có độ sâu lớn hơn 2.0m so với cao độ đỉnh ram hầm tính 250% diện tích.
8. Tính diện tích cho nhà có thang máy gia đình
Đối với nhà ống có thang máy gia đình, chi phí sẽ phụ thuộc vào nhiều yếu tố như loại thang máy (có hố pít hay không), kích thước cabin, loại thang máy kính, và các yếu tố kết cấu khác. Do đó, mức giá cụ thể sẽ được trình bày chi tiết trong báo giá dự toán của Vinahouse.
9. Phần sân thượng trước và sau của mái che thang, tum, chuồng cu

- Mặt bằng mái che thang (sân thượng, tum, chuồng cu):
- Chiều dài sàn: 2.25+0.75+0.9+0.9=4.82.25 + 0.75 + 0.9 + 0.9 = 4.82.25+0.75+0.9+0.9=4.8 m. Trong đó, diện tích 0.9 m đại diện cho mái che bên ngoài, hay còn gọi là seno thoát nước của mái. Diện tích này được tính 100% như một phần của nhà.
- Chiều dài sân thượng trước:
- 4 m−0.9 m=3.1 m4 \, m – 0.9 \, m = 3.1 \, m4m−0.9m=3.1m
- Chiều dài sân thượng sau:
- 3.97 m−0.9 m=3.07 m3.97 \, m – 0.9 \, m = 3.07 \, m3.97m−0.9m=3.07m
Hệ số tính cho phần sân:
- Dưới 30 m²:
- Nếu có đổ cột, đà kiềng, xây tường bao hai bên, lát gạch nền, và có seno trang trí mặt tiền: Tính 70%.
- Nếu không có seno trang trí mặt tiền và dầm cột: Tính 50%, thường áp dụng cho phần sân thượng phía sau nhà.
- Trên 30 m²:
- Nếu có đổ cột, đà kiềng, xây tường rào, lát gạch nền: Tính 50%.
Cách tính này giúp xác định rõ diện tích xây dựng cho mái che thang và các phần liên quan. (Nguồn tham khảo)
Hướng dẫn tính giá thiết kế và xây dựng nhà: Phân tích chi phí theo tổng diện tích xây dựng
Khi lên kế hoạch xây dựng một ngôi nhà, việc hiểu rõ cách tính giá thiết kế và xây dựng là rất quan trọng để bạn có thể quản lý ngân sách một cách hiệu quả. Dưới đây là hướng dẫn chi tiết về cách tính giá thiết kế, giá xây nhà thô và giá trọn gói theo tổng diện tích xây dựng, cùng với những lưu ý quan trọng để bạn đưa ra quyết định đúng đắn.
1. Giá thiết kế
Để tính giá thiết kế, bạn cần sử dụng công thức sau:
Giá thiết kế = Tổng diện tích xây dựng x Đơn giá thiết kế theo m2
Giá thiết kế thường được tính theo diện tích m2 và phụ thuộc vào đơn giá thiết kế mà bạn thỏa thuận với nhà thiết kế.
2. Giá phần thô
Để tính giá phần thô của công trình:
Giá phần thô = Tổng diện tích xây dựng x Đơn giá phần thô theo m2
Giá phần thô bao gồm các chi phí liên quan đến phần kết cấu cơ bản của ngôi nhà như tường, sàn và mái.
3. Giá phần hoàn thiện
Giá phần hoàn thiện được tính bằng công thức:
Giá phần hoàn thiện = Tổng diện tích xây dựng x Đơn giá phần hoàn thiện theo m2
Giá này bao gồm các công việc hoàn thiện nội thất như sơn, lát gạch, lắp đặt thiết bị và đồ nội thất.
4. Giá trọn gói
Để tính giá trọn gói, bạn sử dụng công thức:
Giá trọn gói = Tổng diện tích xây dựng x Đơn giá trọn gói (cả phần thô và phần hoàn thiện)
Giá trọn gói bao gồm tất cả các chi phí từ phần thô đến phần hoàn thiện, thường được áp dụng khi bạn ký hợp đồng trọn gói với nhà thầu.
>> Xem thêm: Báo giá xây nhà trọn gói tại Nghệ An: Mới nhất – Rẻ nhất
Kết Luận
Việc tính toán chính xác các chi phí liên quan đến thiết kế và xây dựng là rất quan trọng để quản lý ngân sách hiệu quả và tránh các chi phí phát sinh không mong muốn. Hãy đảm bảo rằng bạn hiểu rõ cách tính giá và các yếu tố ảnh hưởng đến chi phí trước khi ký hợp đồng với nhà thầu. Đừng quên xem xét các quy định pháp lý mới nhất để đảm bảo dự án của bạn tuân thủ đầy đủ các yêu cầu.




