Biệt thự mái Thái 2 tầng tại Trảng Dài nổi bật với kiến trúc độc đáo, sự kết hợp hoàn hảo giữa phong cách hiện đại và truyền thống. Thiết kế thông minh với nhiều không gian xanh, biệt thự mang lại sự thoải mái và dễ chịu cho cư dân. Các phòng chức năng được bố trí hợp lý, tối ưu hóa ánh sáng tự nhiên và gió trời, tạo nên một không gian sống trong lành và sang trọng.
Đặc biệt, vị trí đắc địa tại Trảng Dài giúp cư dân dễ dàng tiếp cận các tiện ích xung quanh, từ trường học, siêu thị đến các khu vui chơi giải trí. Hãy khám phá ngay biệt thự mái Thái 2 tầng này để tìm kiếm ngôi nhà mơ ước của bạn!

Thông tin biệt thự mái Thái 2 tầng hiện đại tại Trảng Dài M465
- Thiết kế biệt thự mái Thái 2 tầng hiện đại tại Trảng Dài M465
- Chủ đầu tư: Anh Tính – Địa điểm xây dựng: Trảng Dài, Biên Hòa, Đồng Nai
- Diện tích khu đất: Đất vườn rộng – diện tích xây dựng: 7×15
- Tầng 1: 1 phòng khách, 1 bếp ăn, 1 phòng ngủ khép kín, nhà vệ sinh chung
- Tầng 2: 3 phòng ngủ thường, 1 phòng thờ, 1 phòng học, 1 nhà vệ sinh chung
Mặt bằng công năng biệt thự mái Thái 2 tầng hiện đại tại Trảng Dài M465
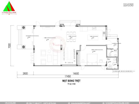
Mặt bằng tầng 1

Tầng 1 của biệt thự mái Thái 2 tầng tại Trảng Dài được thiết kế thông minh với các không gian chức năng hài hòa, đáp ứng tối đa nhu cầu sinh hoạt của gia đình. Phòng khách rộng rãi, thoáng đãng là nơi tiếp đón bạn bè và người thân, tạo cảm giác ấm cúng và sang trọng. Khu vực bếp ăn được bố trí gần gũi, thuận tiện cho việc nấu nướng và sum vầy bên gia đình.
Đặc biệt, phòng ngủ khép kín mang đến không gian riêng tư và tiện nghi cho chủ nhân, với nhà vệ sinh chung thuận lợi cho khách và các thành viên khác trong gia đình. Tầng 1 không chỉ là nơi sinh hoạt mà còn là không gian gắn kết tình cảm gia đình, thể hiện phong cách sống hiện đại và đẳng cấp.
>> Có thể bạn quan tâm: Tổng hợp các mẫu thiết kế biệt thự hiện đại đầy đủ chủng loại và phong cách
Mặt bằng tầng 2

Tầng 2 của biệt thự mái Thái 2 tầng tại Trảng Dài được thiết kế tối ưu với nhiều không gian chức năng, phục vụ cho nhu cầu nghỉ ngơi và học tập của gia đình. Tại đây, bạn sẽ tìm thấy 3 phòng ngủ thường, mỗi phòng đều được bố trí hợp lý, đảm bảo không gian riêng tư và thoải mái cho các thành viên.
Ngoài ra, tầng 2 còn có một phòng thờ trang nghiêm, thể hiện nét văn hóa truyền thống và tôn kính của gia đình. Phòng học được thiết kế yên tĩnh, tạo điều kiện lý tưởng cho việc học tập và nghiên cứu. Kèm theo đó là nhà vệ sinh chung tiện lợi, phục vụ cho cả tầng, đảm bảo sự tiện nghi và sạch sẽ. Tầng 2 không chỉ là không gian nghỉ ngơi mà còn là nơi nuôi dưỡng tâm hồn và tri thức của các thành viên trong gia đình.
>> Xem thêm: Các mẫu biệt thự 2 tầng sang trọng bậc nhất hiện nay
Phối cảnh 3D biệt thự mái Thái 2 tầng hiện đại tại Trảng Dài M465

Biệt thự mái Thái 2 tầng hiện đại tại Trảng Dài M465 mang đến một cái nhìn đầy ấn tượng với thiết kế mái thái xanh nổi bật trên nền tường trắng tinh khôi. Tầng 1 rộng rãi, với các cửa kính khung sắt lớn giúp ánh sáng tự nhiên tràn ngập không gian, tạo cảm giác thoáng đãng và gần gũi với thiên nhiên.

Ban công tầng 2 được thiết kế tinh tế, là nơi lý tưởng để thư giãn và ngắm cảnh, trong khi sân vườn rộng rãi bao quanh căn biệt thự được trồng nhiều cây xanh, tạo nên không gian sống trong lành và mát mẻ. Tất cả những yếu tố này kết hợp hài hòa, mang đến một không gian sống không chỉ hiện đại mà còn sang trọng và ấm cúng, lý tưởng cho cuộc sống gia đình.


Phòng khách thông tầng của biệt thự mái Thái 2 tầng tại Trảng Dài là không gian đẳng cấp, kết hợp hài hòa giữa vẻ đẹp cổ điển và sự tiện nghi hiện đại. Với chiều cao thoáng đãng, ánh sáng tự nhiên chiếu sáng từ các ô cửa lớn, tạo cảm giác rộng rãi và thoáng đãng. Nội thất gỗ cổ điển được lựa chọn tinh tế, từ bàn ghế đến kệ trang trí, mang đến sự ấm cúng và sang trọng.




Đặc biệt, đèn chùm lộng lẫy treo giữa phòng không chỉ làm điểm nhấn nổi bật mà còn tạo ra không gian lung linh, phù hợp cho những buổi tiệc tùng hay tiếp đón khách quý. Tất cả những chi tiết này cùng nhau tạo nên một phòng khách vừa hiện đại vừa mang đậm phong cách cổ điển, hoàn hảo cho những buổi sum họp gia đình hay những khoảnh khắc thư giãn.


Phòng bếp của biệt thự mái Thái 2 tầng tại Trảng Dài được thiết kế tinh tế, kết hợp giữa vẻ đẹp cổ điển và sự hiện đại. Với nội thất chủ yếu bằng gỗ, không gian bếp vừa mang lại cảm giác ấm cúng vừa thể hiện sự sang trọng. Các thiết bị hiện đại được bố trí thông minh, đảm bảo sự tiện nghi tối đa cho việc nấu nướng.




Cửa sổ lớn không chỉ giúp ánh sáng tự nhiên tràn ngập không gian mà còn tạo cảm giác thông thoáng, dễ chịu. Bàn ăn bằng gỗ được đặt ở vị trí hợp lý, là nơi lý tưởng cho các bữa ăn gia đình, tạo nên những khoảnh khắc sum vầy ấm áp. Tổng thể phòng bếp không chỉ là nơi chế biến món ăn mà còn là không gian sống động, thể hiện phong cách sống đẳng cấp và tinh tế.



Ba phòng ngủ của biệt thự mái Thái 2 tầng tại Trảng Dài được thiết kế đồng nhất với tông màu trắng tinh khiết, tạo cảm giác rộng rãi và thanh lịch. Mỗi phòng đều được trang bị tủ quần áo ốp gỗ, vừa tạo điểm nhấn sang trọng vừa mang đến không gian lưu trữ tiện lợi.



Bàn trang điểm được thiết kế tinh tế, hoàn hảo cho việc chăm sóc bản thân, và TV được bố trí hợp lý, mang đến sự tiện nghi cho những giờ giải trí thoải mái. Ánh sáng tự nhiên từ cửa sổ lớn kết hợp với nội thất nhẹ nhàng, giúp tạo ra không gian nghỉ ngơi thoải mái và thư giãn. Tổng thể, các phòng ngủ không chỉ là nơi nghỉ ngơi mà còn là không gian thể hiện phong cách sống hiện đại và tinh tế.
Phòng học chung của biệt thự mái Thái 2 tầng tại Trảng Dài được thiết kế với tông màu trắng sáng, tạo ra không gian học tập thông thoáng và dễ chịu. Với nội thất đơn giản nhưng đầy tiện nghi, phòng học mang đến môi trường lý tưởng cho việc học tập và nghiên cứu.

Bàn học được bố trí hợp lý, với ghế ngồi thoải mái, giúp tăng cường sự tập trung. Các kệ sách được sắp xếp gọn gàng, tạo điều kiện thuận lợi cho việc lưu trữ tài liệu và sách vở. Ánh sáng tự nhiên từ cửa sổ lớn không chỉ giúp tiết kiệm năng lượng mà còn nâng cao tinh thần làm việc. Tất cả những yếu tố này kết hợp lại, tạo nên một không gian học tập hiện đại, tiện nghi và đầy cảm hứng.

Phòng thờ của biệt thự mái Thái 2 tầng tại Trảng Dài được thiết kế bằng gỗ, mang lại vẻ trang nghiêm và ấm cúng. Tường gỗ ốp tạo cảm giác gần gũi, cùng với bàn thờ được chế tác tinh xảo, thể hiện sự tôn kính và truyền thống. Ánh sáng dịu nhẹ từ đèn trang trí và cửa sổ lớn giúp không gian thêm phần thanh tịnh. Nội thất đơn giản nhưng đầy ý nghĩa, tạo nên một nơi trang nghiêm để thờ cúng và thiền định.
Nhà vệ sinh của biệt thự mái Thái 2 tầng tại Trảng Dài được thiết kế hiện đại với tông màu xám chủ đạo, tạo nên không gian sang trọng và tinh tế. Gạch ốp tường và sàn nhà màu xám không chỉ dễ dàng vệ sinh mà còn mang lại cảm giác sạch sẽ và rộng rãi.




> Xem thêm: Các mẫu biệt thự hot nhất 2025
Bản vẽ thiết kế biệt thự mái Thái 2 tầng hiện đại tại Trảng Dài M465
- Bản vẽ chi tiết kiến trúc ( đầy đủ các mặt cắt, mặt đứng, các bản vẽ chi tiết công trình).
- Bản vẽ kết cấu công trình.
- Hình ảnh phối cảnh 3D ngoại thất.
- Bản vẽ điện + cấp thoát nước.
- Dự toán công trình: chi tiết chi phí xây dựng, thống kê vật tư công trình.
- Toàn bộ hồ sơ thiết kế công năng các phòng và kiến trúc đều được tư vấn hợp theo Phong thủy và tuổi của chủ đầu tư. Kích thước các phòng, chiều cao nhà và kích thước cửa đều theo kích thước phong thủy.
Với mục tiêu xây dựng không gian sống tuyệt vời nhất cho khách hàng, chúng tôi luôn lắng nghe và thấu hiểu để mang đến những điểm đặc biệt nhất. Mỗi công trình của Vinahouse là một tác phẩm tinh thần, chúng tôi đặt trọn tâm huyết và sức lực vào từng dự án.
Hãy tin tưởng và lựa chọn Vinahouse là đối tác đồng hành của bạn. Liên hệ ngay qua số hotline để nhận được sự tư vấn và báo giá hoàn toàn miễn phí. Hãy để chúng tôi giúp bạn biến ước mơ thành hiện thực!
>> Xem thêm: Top 100 mẫu nhà cấp 4 mái Thái đẹp nhất tại Vinahouse
Công ty TNHH MTV Tư Vấn Thiết Kế Xây Dựng Vinahouse
- VP Miền Nam : Số 1A8 , Nguyễn Văn Tiên, KP 11, P Tân Phong, TP Biên Hòa, Đồng Nai
- VP Miền Trung: số 62 đường Yên Dũng Thượng, P Hưng Dũng, TP Vinh, Nghệ An
- Hotline: 0917799577 – 0973979155
- Email: vinahouse2012@gmail.com




























































