Nhà cấp 4 mái Nhật 100m2 có 3 phòng ngủ là lựa chọn lý tưởng cho những ai đang tìm kiếm không gian sống tiết kiệm chi phí mà vẫn đảm bảo tính thẩm mỹ và tiện nghi. Với thiết kế đơn giản, mái nhật thường được xây dựng với chi phí đầu tư ban đầu hợp lý hơn so với các loại kiến trúc phức tạp khác.
Với lợi ích này, những ngôi nhà mái Nhật không chỉ là nơi an cư lý tưởng mà còn là sự đầu tư thông minh cho tương lai.

Thông tin nhà cấp 4 mái nhật 100m2 có 3 phòng ngủ ở Kiên Giang
- Thiết kế Nhà cấp 4 mái nhật 100m2 có 3 phòng ngủ ở Kiên Giang M444
- Chủ đầu tư: Anh Luân – Địa điểm xây dựng: An Biên, Kiên Giang
- Diện tích khu đất: 9×20 – diện tích xây dựng: 7×14
- Tầng trệt: Phòng khách + 3 phòng ngủ lớn + Bếp ăn + Khu giặt rửa và 2 nhà vệ sinh chung
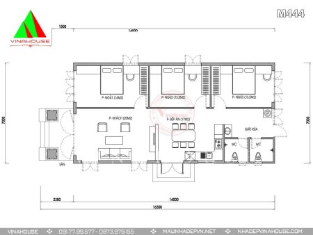
Mặt bằng công năng nhà cấp 4 7×14 có 3 phòng ngủ ở Kiên Giang

Tầng trệt được thiết kế kỹ lưỡng, mang đến không gian hiện đại và ấm áp, tạo điều kiện lý tưởng cho mỗi thành viên trong gia đình. Nơi đây gồm có phòng khách rộng rãi, ba phòng ngủ lớn, bếp ăn được bố trí tỉ mỉ, khu vực giặt rửa và hai nhà vệ sinh chung. Bếp ăn rộng rãi và tiện nghi, tạo cảm giác thoải mái và hoàn hảo cho mọi thành viên trong gia đình.
> Xem thêm: Mẫu nhà cấp phố đẹp nhất hiện nay mà bạn không thể bỏ lỡ
Mặt tiền nhà cấp 4 mái nhật 7×14 có 3 phòng ngủ ở Kiên Giang

Ngôi nhà cấp 4 với thiết kế mái Nhật tinh tế và phối cảnh 3D sử dụng gam màu chủ đạo là trắng, tạo nên không gian sang trọng và thanh nhã. Hệ thống cửa kính khung sắt mang lại cảm giác thoải mái và sự thông thoáng cho không gian.


Tổng thể ngôi nhà đơn giản và sắp xếp gọn gàng, với mỗi chi tiết được chăm chút tỉ mỉ, phù hợp và tiện nghi tối đa cho các gia đình có thu nhập trung bình.
> Xem thêm: Tổng hợp mẫu nhà ống 2 tầng phổ biến nhất 2024
Bản vẽ thiết kế nhà cấp 4 mái nhật 3 phòng ngủ ở Kiên Giang M444
- Bản vẽ chi tiết kiến trúc ( đầy đủ các mặt cắt, mặt đứng, các bản vẽ chi tiết công trình).
- Bản vẽ kết cấu công trình.
- Hình ảnh phối cảnh 3D ngoại thất.
- Bản vẽ điện + cấp thoát nước.
- Dự toán công trình: chi tiết chi phí xây dựng, thống kê vật tư công trình.
- Toàn bộ hồ sơ thiết kế công năng các phòng và kiến trúc đều được tư vấn hợp theo Phong thủy và tuổi của chủ đầu tư. Kích thước các phòng, chiều cao nhà và kích thước cửa đều theo kích thước phong thủy.
> Có thể bạn quan tâm: Giá xây nhà trọn gói rẻ nhất hiện nay
Với mục tiêu xây dựng không gian sống tuyệt vời nhất cho khách hàng, chúng tôi luôn lắng nghe và thấu hiểu để mang đến những điểm đặc biệt nhất. Mỗi công trình của Vinahouse là một tác phẩm tinh thần, chúng tôi đặt trọn tâm huyết và sức lực vào từng dự án.
Hãy tin tưởng và lựa chọn Vinahouse là đối tác đồng hành của bạn. Liên hệ ngay qua số hotline để nhận được sự tư vấn và báo giá hoàn toàn miễn phí. Hãy để chúng tôi giúp bạn biến ước mơ thành hiện thực!
> Xem thêm: Top 100 mẫu nhà cấp 4 đẹp nhất tại Vinahouse năm
Công ty TNHH MTV Tư Vấn Thiết Kế Xây Dựng Vinahouse
- VP Miền Nam : Số 1A8 , Nguyễn Văn Tiên, KP 11, P Tân Phong, TP Biên Hòa, Đồng Nai
- VP Miền Trung: số 62 đường Yên Dũng Thượng, P Hưng Dũng, TP Vinh, Nghệ An
- Hotline: 0917799577 – 0973979155
- Email: vinahouse2012@gmail.com












