Hiện nay, biệt thự vườn 1 tầng là xu hướng chọn lựa của nhiều gia chủ yêu thích không gian sống nhẹ nhàng, thanh nhàn và gần gũi thiên nhiên. Bởi khi xã hội hiện đại hóa, công nghệ hóa, cuộc sống ngoài kia quá bon chen thì nhà là nơi để trở về sau những vất vả bên ngoài. Thiết kế biệt thự vườn 1 tầng mái nhật vừa đáp ứng được nhu cầu về thẩm mỹ cũng như không gian nhẹ nhàng, công năng tối ưu. Thiết kế biệt thự mái nhật cũng mang đến những nét đẹp độc đáo, sang trọng riêng rất cuốn hút.

Thông tin biệt thự vườn 1 tầng mái nhật hiện đại M305
- Biệt thự mái nhật 1 tầng: M305.
- Chủ đầu tư: anh Tâm.
- Địa điểm xây dựng: Dầu Tiếng, Bình Dương.
- Diện tích khu đất: Đất vườn rộng.
- Diện tích xây dựng: 15×19.
- Công năng sử dụng: Phòng khách, phòng thờ, bếp ăn, 1 phòng ngủ khép kín, 3 phòng ngủ thường, khu giặt rửa.
- Thời điểm thiết kế: Tháng 12 năm 2021.
- Liên hệ tư vấn 0917799577 – 0973979155.
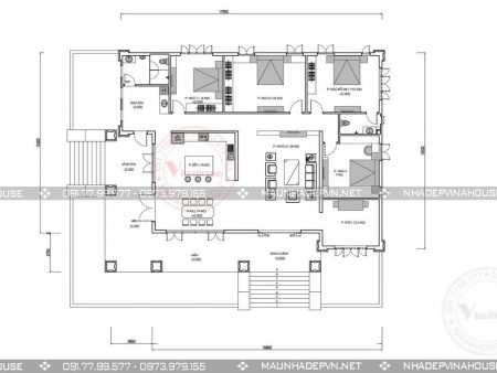
Mặt bằng biệt thự vườn 1 tầng mái nhật hiện đại M305

Toàn bộ các không gian được bố trí trên một mặt bằng nhưng lại không hề bị bất tiện, thay vào đó những phòng ốc được bố trí rất khoa học tạo nên sự tiện nghi vô cùng.
Mặt bằng căn biệt thự này gồm 1 phòng khách lớn từ sảnh chính đi vào, bên cạnh là phòng bếp ăn được gần sảnh phụ. Bên phải của sảnh chính là phòng thờ liền tiếp là 4 phòng ngủ được bố trí liền nhau theo hình chữ L gần nhau, cuối cùng là một nhà vệ sinh chung và khu vực giặt rửa của gia đình.
>> Xem thêm: Thiết kế biệt thự tân cổ điển đẹp vượt thời gian.
Phối cảnh 3D biệt thự vườn 1 tầng mái nhật M305

Sở hữu diện tích đất rộng rãi, căn biệt thự được thiết kế vuông vắn, không gian rộng rãi thỏa sức sáng tạo. Dưới bàn tay khéo léo và tài ba của các KTS của Vinahouse thì mẫu biệt thự này đã trở nên sa hoa, sang trọng đầy sức sống. Thiết kế biệt thự theo phong cách hiện đại, phóng khoáng thể hiện đúng cá tính của gia chủ.
Tổng thể công trình ngoại thất đến khuôn viên đã đáp ứng đúng nhu cầu của chủ đầu tư về không gian sống trong lành, gần gũi thiên nhiên và đầy đủ tiện nghi, thoải mái.

Màu sắc chính là một yếu tố vô cùng quan trọng góp phần làm nổi bật kiến trúc ngoại thất của một ngôi nhà. Ở đây các KTS đã sử dụng tone màu trắng làm chủ đạo, điểm xuyết bởi màu xám, nâu và xanh đen làm nổi bật lên không gian ngoại thất của công trình. Màu sắc của ngôi nhà cũng mang rất nhiều ý nghĩa, thể hiện cá tính riêng của chủ đầu tư cũng như là mang ý nghĩa phong thủy, phù hợp nhất với gia đình.

Sau màu sắc thì ánh sáng là một yếu tố rất quan trọng trong mỗi không gian sống. Các KTS đã sử dụng gỗ tự nhiên làm cửa chính mang ý nghĩa cho sự bình an, thịnh vượng và kết hợp với hệ thống cửa sổ bằng kính để ánh sáng tự nhiên vào nhà tốt nhất. Hệ thống cửa kính kết hợp với không gian sân vườn nhiều cây xanh đã tạo nên không gian sống rất trong lành, hài hòa, gần gũi với nhau.

Hệ thống mái nhật ngày càng được nhiều gia chủ lựa chọn bởi vẻ đẹp thẩm mỹ nhã nhặn, không quá phô trương như mái thái nhưng lại vẫn mang nét đẹp sang trọng, vô cùng cuốn hút. Cùng với đó mái nhật cũng tối ưu công năng, thoát nước tốt, điều hòa không khí bên trong mát mẻ, thư giãn.
Toàn bộ diện tích còn lại được làm sân vườn rất rộng rãi, các KTS đã bố trí cả nơi đỗ ô tô, hồ nước và chòi ngồi cạnh hồ rất thơ mộng.
>> Xem thêm: Những mẫu biệt thự vườn đẹp dẫn đầu xu hướng.
Thiết kế nội thất mẫu biệt thự vườn 1 tầng mái nhật M305
Nội thất căn biệt thự được thiết kế theo phong cách hiện đại, hài hòa với không gian ngoại thất. Toàn bộ nội thất căn biệt thự vườn 1 tầng được làm bằng gỗ tự nhiên mang đến không gian rất gần gũi và ấm áp. Từ xưa, gỗ tự nhiên cũng là vật liệu được người Việt rất ựa chuộng và sử dụng như để khẳng định đẳng cấp của gia đình mình.
Thiết kế nội thất phòng khách
Phòng khách được ôm trọn bởi bộ bàn ghế sofa chữ nhật rất lớn và bề thế. Thiết kế đơn giản, dứt khoát nhưng lại rất tinh tế và cuốn hút, mang đến nét đẹp sang trọng. Hệ thống kệ tủ tivi lớn hết hợp tủ trang trí làm điểm nhấn nổi bật cho căn phòng.



Không gian phòng khách cũng được trang trí bằng những bức tranh thiên nhiên trên tường giúp cho những bức tường trở nên đỡ trống trải lại vừa mang tính thẩm mỹ, nghệ thuật.

Nội thất phòng bếp ăn
Nổi bật trong phòng bếp ăn là bộ bàn ghế ăn chữ nhật trắng với thiết kế rất cầu kỳ. Bàn ăn chữ nhật mặt đá vân marble rất cuốn hút, những chiếc ghế cũng được thiết kế kỹ lưỡng phần tựa lưng để giúp các thành viên dùng bữa thoải mái nhất.

Tủ bếp chữ L có bàn đảo hiện đại, các ngăn tủ trên và dưới được thiết kế khoa học để tạo sự thoải mái, tiện nghi nhất cho người nấu ăn.
Nội thất phòng ngủ biệt thự vườn 1 tầng mái nhật
Nội thất các phòng ngủ được thiết kế thống nhất với nhau, không quá nhiều nội thất để tạo nên không gian nghỉ ngơi, thư giãn tốt nhất. Tuy nhiên không thể thiếu những món đồ nội thất như: giường ngủ, tủ quần áo, kệ tivi, bàn trang điểm hoặc bàn làm việc…








Bản vẽ biệt thự vườn 1 tầng mái nhật M305 bao gồm:
- Bản vẽ chi tiết kiến trúc ( đầy đủ các mặt cắt, mặt đứng, các bản vẽ chi tiết công trình).
- Bản vẽ kết cấu công trình.
- Hình ảnh phối cảnh 3D ngoại thất.
- Bản vẽ điện + cấp thoát nước.
- Dự toán công trình: chi tiết chi phí xây dựng, thống kê vật tư công trình.
- Toàn bộ hồ sơ thiết kế công năng các phòng và kiến trúc đều được tư vấn hợp theo Phong thủy và tuổi của chủ đầu tư. Kích thước các phòng, chiều cao nhà và kích thước cửa đều theo kích thước phong thủy.
Vinahouse là công ty thiết kế và xây dựng nhà ở, biệt thự trọn gói, chuyên nghiệp, uy tín. Tất cả những công trình Vinahouse vẽ lên đều được trao đổi kỹ lưỡng với chủ đầu tư, thống nhất và tạo nên những không gian sống tốt nhất tới khách hàng. Mẫu biệt thự vườn 1 tầng mái nhật này là một trong những công trình được rất nhiều khách hàng yêu thích. Nếu quý khách hàng đang cần tư vấn và hỗ trợ về thiết kế và xây dựng nhà ở, biệt thự, khách sạn.. thì hãy liên hệ với chúng tôi qua số hotline nhé.
Liên hệ tư vấn thiết kế xây dựng biệt thự.
Công ty TNHH MTV Tư Vấn Thiết Kế Xây Dựng Vinahouse.
Office: Số 79 ,Nguyễn Khuyến, P. Trảng Dài, TP Biên Hòa, Đồng Nai.
Tell : 091.7799.577 – 0973.979.155.
Email: vinahouse2012@gmail.com.
Trân trọng.

























