Thiết kế biệt thự 1 tầng đang là xu hướng hiện nay, đối với những gia chủ sở hữu diện tích đất rộng thì đây đang là lựa chọn được ưu tiên nhất. Thiết kế toàn bộ không gian sinh hoạt ở một tầng giống như ngày xưa mang đến cảm giác gần gũi, thân thuộc. Cùng với đó dưới sự sáng tạo, tài ba của các KTS ngôi nhà trở nên lộng lẫy mang thẩm mỹ cao lại tiện nghi, thoải mái. Dưới đây là mẫu thiết kế biệt thự 1 tầng tân cổ điển mái nhật ở Tây Ninh do Vinahouse thiết kế muốn gửi đến bạn, mời quý khách hàng cùng khám phá.

Thông tin thiết kế biệt thự 1 tầng tân cổ điển mái nhật: M340
- Biệt thự trệt 1 tầng mái nhật: M340
- Chủ đầu tư: anh Tài.
- Địa điểm xây dựng: Tây Ninh.
- Diện tích khu đất: Đất vườn rộng.
- Diện tích xây dựng: 13×17 Chưa tính sảnh.
- Công năng sử dụng:
- Phòng khách, phòng thờ, bếp ăn, 2 phòng ngủ thường, 2 phòng ngủ khép kín, khu giặt rửa và 1 nhà vệ sinh chung
- Thời điểm thiết kế: Tháng 4 năm 2022.
- Liên hệ tư vấn 0917799577 – 0973979155.
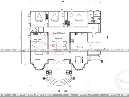
Mặt bằng biệt thự trệt 1 tầng mái nhật tân cổ điển ở Tây Ninh M340
Sở hữu diện tích đất rộng, các KTS thiết kế các không gian rất rộng rãi, khoa học và tiện nghi. Ngôi nhà được thiết kế với 1 phòng khách lớn, 1 phòng bếp lớn, 1 phòng thờ và 4 phòng ngủ. Mẫu nhà sẽ rất phù hợp với gia đình 2 thế hệ hoặc có từ 5, 6 thành viên.

Phối cảnh 3D thiết kế biệt thự 1 tầng tân cổ điển đẹp M340
Thiết kế mặt tiền căn biệt thự chia thành 3 phần không gian, trung tâm là khu vực cửa chính và hai bên được thiết kế những khung cửa hình khối rất thu hút. Hệ cột trụ tròn trắng tinh tế, trang nhã nhưng cũng không kém phần vững chãi chống đỡ toàn bộ mái sảnh chính. Bậc tam cấp của ngôi nhà vườn đẹp này được KTS thiết kế xòe tròn như hình cánh quạt bắt mắt. Và phần lan can thấp khiến không gian phía trước lối vào trở nên rộng rãi và khang trang. Hai bên cạnh được bố trí những lùm hoa, cây cảnh khiến không gian ngoại thất thêm phần tươi mát, rực rỡ.

Màu sắc chủ đạo của ngôi nhà là màu trắng thuần khiết cùng mái đá xanh tạo nên một nét đẹp vô cùng tinh tế. Kết hợp với các vật liệu hiện đại càng làm cho căn biệt thự thêm phần quan trọng.

Nhìn từ trên cao ta có thể thấy ngôi biệt thự được thiết kế với hình khối vuông vắn đẹp mắt kết hợp các khối đua hình vòm ở sảnh chính rất mỹ miều. Bên cạnh đó, ngôi biệt thự vườn 1 tầng trắng tinh khối, trang nhã kết hợp với mái thái xanh khiến cho ngôi nhà càng thêm vững chãi và cuốn hút người nhìn ở mọi góc đặt mắt.

Hệ thống mái nhật là dấu ấn đặc biệt không thể thiếu được trong thiết kế này. Thiết kế mái nhật với độ dốc vừa phải, sử dụng chất liệu gạch ngói cao cấp không chỉ gia tăng khả năng che mưa, chắn gió cho không gian nội thất bên trong mà còn giúp không gian sống thêm mát mẻ vào mùa hè và ấm áp vào mùa đông. Với công năng ưu việt này, hệ thống mái nhật hiện đang là xu hướng thiết kế biệt thự đẹp đang ngày càng được nhiều chủ đầu tư lựa chọn.
>> Xem thêm: 99+ Mẫu thiết kế biệt thự tân cổ điển đẹp.
Bản vẽ thiết kế biệt thự 1 tầng tân cổ điển mái nhật M340 bao gồm:
- Bản vẽ chi tiết kiến trúc ( đầy đủ các mặt cắt, mặt đứng, các bản vẽ chi tiết công trình).
- Bản vẽ kết cấu công trình.
- Hình ảnh phối cảnh 3D ngoại thất.
- Bản vẽ điện + cấp thoát nước.
- Dự toán công trình: chi tiết chi phí xây dựng, thống kê vật tư công trình.
- Toàn bộ hồ sơ thiết kế công năng các phòng và kiến trúc đều được tư vấn hợp theo Phong thủy và tuổi của chủ đầu tư. Kích thước các phòng, chiều cao nhà và kích thước cửa đều theo kích thước phong thủy.
Nếu quý khách hàng đang tìm kiếm một mẫu thiết kế biệt thự 1 tầng tân cổ điển 4 phòng ngủ thì mẫu nhà của anh Tài chính là một gợi ý tuyệt vời dành cho bạn.
Với mỗi công trình khác nhau, Vinahouse sẽ thiết kế dựa trên chính nhu cầu của gia chủ, mang đến màu sắc, cá tính riêng.
Liên hệ với Vinahouse qua số hotline 0973.979.155 để được tư vấn và hỗ trợ hoàn toàn miễn phí.
>> Xem thêm: Báo giá thiết kế nhà trọn gói đẹp giá rẻ mới nhất 2022.
Liên hệ tư vấn thiết kế xây dựng biệt thự.
Công ty TNHH MTV Tư Vấn Thiết Kế Xây Dựng Vinahouse.
Office: Số 79 ,Nguyễn Khuyến, P. Trảng Dài, TP Biên Hòa, Đồng Nai.
Tell : 091.7799.577 – 0973.979.155.








Kiến trúc sư –
mẫu nhà đẹp quá