Thiết kế nhà cấp 4 đầy đủ tiện nghi lại tiết kiệm chi phí với 4 phòng ngủ này được rất nhiều gia chủ yêu thích. Thiết kế mang đến vẻ đẹp thẩm mỹ cao, phòng ốc bố trí khoa học, tiện nghi đảm bảo không gian sinh hoạt thoải mái. Thiết kế này vừa gần gũi, thân thuộc lại không kém phần sang trọng, cuốn hút. Mời quý khách hàng cùng khám phá mẫu thiết kế nhà cấp 4 ở Long Thành do Vinahouse thiết kế dưới đây.

Thông tin thiết kế nhà cấp 4 ở Long Thành: M327
- Nhà cấp 4 mái thái ở Long Thành: M327
- Chủ đầu tư: BÁC ĐOẠT.
- Địa điểm xây dựng: Long Thành.
- Diện tích khu đất: 13×30.
- Diện tích xây dựng: 9.15x19m
- Công năng sử dụng: Phòng khách, phòng thờ, bếp ăn, 3 phòng ngủ thường, 1 phòng ngủ khép kín, 1 nhà vệ sinh 1 nhà tắm, khu để xe máy, giặt rửa.
- Thời điểm thiết kế: Tháng 2 năm 2022.
- Liên hệ tư vấn 0917799577 – 0973979155.
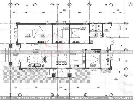
Mặt bằng thiết kế nhà đẹp ở Long Thành M327
Sở hữu diện tích đất vuông vắn, các phòng ốc được bố trí rất khoa học, gọn gàng. Thiết kế 3 phòng ngủ trên cùng một mặt bằng nhưng rất riêng tư, tạo không gian riêng cho các thành viên. Các không gian sinh hoạt chung được bố trí hiện đại, phòng khách ngay sảnh chính đi vào để tiếp đón những vị khách quý. Phòng bếp được bố trí gần sảnh phụ tạo không gian thoáng đãng, thoải mái khi nấu nướng. Phòng thờ nhỏ được thiết kế ngay phía đầu bên cạnh phòng khách riêng biệt.

Phối cảnh 3D thiết kế nhà cấp 4 ở Long Thành M327
Sau khi thống nhất với chủ đầu tư Bác Đoạt – các KTS đã thiết kế mẫu nhà cấp 4 ở Long Thành theo phong cách tân cổ điển nhẹ nhàng. Là sự kết hợp tinh tế giữa hiện đại và cổ điển. Vừa gọn gàng, không phô trương nhưng lại rất cuốn hút.

Thiết kế được sử dụng tone màu chủ đạo chính là trắng – xám – xanh đen rất hài hòa. Toàn bộ bờ tường được sơn trắng làm nổi bật lên khoảng chám xám ở mặt tiền và hệ thống cửa. Nhờ đó mà các họa tiết trang trí cũng nổi lên vô cùng thu hút. Hệ thống phào chỉ rõ nét, chân tường ốp đá xám đen nổi bật vừa mang tính thẩm mỹ vừa tránh nước ngấm vào tường ảnh hưởng đến chất lượng của tổng thể ngôi nhà.
Cửa chính được làm bằng gỗ tự nhiên chắc chắn và tone nâu ấm áp, gần gũi. Hệ thống cửa sổ được làm bằng kính cường lực giúp không gian bên trong trở nên thoáng đãng và rộng rãi hơn.

Hệ thống mái thái chữ A giật cấp làm điểm nhấn nổi bật nhất của ngôi nhà, giúp mẫu nhà cấp 4 trở nên cao lớn và rộng rãi hơn. Phần mái thái rộng, che cả phần hiên nhà giúp ánh nắng và mưa không hắt trực tiếp vào phía trong. Thiết kế mái thái còn giúp thoát nước tốt, điều hòa không khí mát mẻ vào mùa hè, ấm áp vào mùa đông. Đó chính là lý do vì sao mái thái ngày càng được nhiều người Việt lựa chọn.
Phần sân trước không được lớn nhưng các KTS vẫn thiết kế những khoảng trống nhất định để trồng cây, hoa lá giúp không gian sống trở nên sinh động, tươi sáng, đầy sức sống.
>> Xem thêm: 1000+ Mẫu Biệt Thự Đẹp Và Sang Trọng Bậc Nhất Năm 2022
Bản vẽ thiết kế nhà cấp 4 ở Long Thành M327 bao gồm:
- Bản vẽ chi tiết kiến trúc ( đầy đủ các mặt cắt, mặt đứng, các bản vẽ chi tiết công trình).
- Bản vẽ kết cấu công trình.
- Hình ảnh phối cảnh 3D ngoại thất.
- Bản vẽ điện + cấp thoát nước.
- Dự toán công trình: chi tiết chi phí xây dựng, thống kê vật tư công trình.
- Toàn bộ hồ sơ thiết kế công năng các phòng và kiến trúc đều được tư vấn hợp theo Phong thủy và tuổi của chủ đầu tư. Kích thước các phòng, chiều cao nhà và kích thước cửa đều theo kích thước phong thủy.

Thiết kế nhà cấp 4 ngày càng được nhiều gia chủ lựa chọn bởi sự ấm áp, gần gũi cùng với đó tiết kiệm khá nhiều chi phí xây dựng. Dưới bàn tay khéo léo của các KTS những mẫu nhà cấp 4 đều trở nên tiện nghi, thoải mái, bố trí công năng rất khoa học.
Tại Vinahouse chúng tôi còn luôn tuân thủ các nguyên tắc thiết kế chuẩn phong thủy nhằm tạo nên không gian sống chất lượng nhất tới khách hàng.
Liên hệ với Vinahouse qua số hotline 0973.979.155 để được tư vấn và hỗ trợ hoàn toàn miễn phí.
Liên hệ tư vấn thiết kế xây dựng biệt thự tại maunhadepvn.
Công ty TNHH MTV Tư Vấn Thiết Kế Xây Dựng Vinahouse.
Office: Số 79 ,Nguyễn Khuyến, P. Trảng Dài, TP Biên Hòa, Đồng Nai.
Tell : 091.7799.577 – 0973.979.155.







