Những mẫu biệt thự vườn 1 tầng mái thái luôn mang đến cho chúng ta một cảm giác quen thuộc, gần gũi và bình yên. Trong cuộc sống ngày càng phát triển, đô thị hóa, sống nhanh thì những ngôi nhà bình yên chính là điều mà chúng ta cần. Chính vì vậy những mẫu nhà vườn 1 tầng ngày càng được nhiều gia chủ lựa chọn hơn. Không chỉ đem lại cảm giác gần gũi, thân thuộc mà nó còn mang lại cả giá trị thẩm mỹ cao, công năng sinh hoạt tiện nghi. Chúng ta cùng khám phá mẫu biệt thự vườn 1 tầng mái thái ở Long An M300 với 4 phòng ngủ siêu tiện nghi này nhé.

Thông tin căn mẫu biệt thự vườn 1 tầng mái thái M300
- Biệt thự 1 tầng: M300.
- Chủ đầu tư: anh Út.
- địa điểm xây dựng: Long An.
- Diện tích khu đất: đất vườn rộng.
- Diện tích xây dựng: 8,5×21 ( tính cả sảnh 10,5×23).
- Công năng sử dụng: Phòng khách, phòng bếp ăn, phòng thờ, 1 phòng ngủ khép kín, 3 phòng ngủ thường, 2 nhà vệ sinh chung, khu giặt rửa..
- Thời điểm thiết kế: Tháng 11 năm 2021.
- Liên hệ tư vấn 0917799577 – 0973979155.
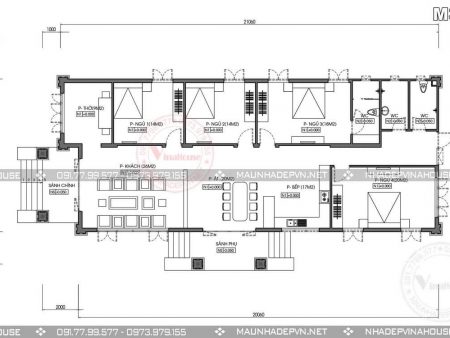
Mặt bằng mẫu biệt thự vườn 1 tầng mái thái M300

Toàn bộ công năng của ngôi nhà đều được bố trí hết 1 tầng, điều này giúp gắn kết các thành viên trong gia đình hơn. Từ sảnh chính bước vào bên phải là phòng khách rộng rãi, là nơi để đón tiếp những vị khách quý. Đây cũng chính là nơi thể hiện cá tính của gia chủ. Liền kề là phòng bếp và phòng ăn lớn, thiết kế gần sảnh phụ để khi nấu nướng, ăn tiệc sẽ không bị bám mùi thức ăn. Cuối cùng là một phòng ngủ rộng rãi, có cửa đi ra phía sau sân vườn.
Bên trái từ sảnh chính đi vào là phòng thờ nhỏ ngay đầu tiên, tiếp đến 3 phòng ngủ được bố trí liền nhau, thiết kế nhà giúp các thành viên trở nên gần gũi và gắn kết hơn. 1 phòng ngủ có khép kín được thiết kế phía cuối cùng. Với gia đình khá đông, bố trí 4 phòng ngủ nên các KTS đã thiết kế 2 nhà vệ sinh chung để tạo sự tiện nghi nhất cho gia chủ.
>> Có thể bạn quan tâm: Tổng hợp 99+ mẫu nhà đẹp nhất năm 2021.
Phối cảnh 3D mẫu biệt thự vườn 1 tầng mái thái M300

Ngay sau khi nhận được thông tin của khách hàng, các KTS của Maunhadepvn đã gọi điện thoại tư vấn và trao đổi với khách hàng, cùng đưa ra thống nhất thiết kế mẫu biệt thự vườn 1 tầng này theo phong cách tân cổ điển. Phong cách thiết kế tân cổ điển là tinh hoa của phong cách thiết kế hiện đại, dứt khoát, mạnh mẽ cũng với họa tiết hoa văn tinh tế được chọn lọc, đặt thật đúng vị trí tạo nên nét đẹp tân cổ điển vô cùng cuốn hút.

Thiết kế biệt thự vườn tân cổ điển với mái thái chữ A dốc giúp cho mẫu nhà trở nên cao lớn, đồ sộ hơn. Thoạt nhìn chúng ta sẽ tưởng tượng đây như một tòa lâu đài được thu nhỏ mang đầy vẻ đẹp thẩm mỹ.
Tone màu chủ đạo của căn biệt thự này là trắng mang đến sự tươi sáng, kết hợp với mái thái xanh nổi bật. Toàn bộ cửa của ngôi nhà cũng được làm bằng kính để đón ánh sáng tự nhiên tốt nhất. Không gian bên trong lẫn bên ngoài đều trở nên thoáng đãng, tự nhiên hơn.

Nhìn mặt tiền của ngôi nhà không ai không ấn tượng với những trụ cột vuông chắc chắn, họa tiết hoa văn cầu kỳ toát lên vẻ đẹp sang trọng. Hai cột lớn hai bên và vòm cung, họa tiết hoa văn vẻ trên tường theo vòm cong ấy như đuôi con công xòe ra rất ấn tượng.
Tổng thể ngoại thất có khá nhiều những chi tiết hoa văn khác nhau nhưng được đặt rất tinh tế, tạo nên tổng thể mỹ miều chứ không hề bị rối mắt.

Phần sân vườn khá rộng, tại đây còn được thiết kế cả không gian ngồi ngắm cảnh, hồ bơi rất tuyệt vời.
Bản vẽ mẫu biệt thự vườn 1 tầng mái thái bao gồm:
- Bản vẽ chi tiết kiến trúc ( đầy đủ các mặt cắt, mặt đứng, các bản vẽ chi tiết công trình).
- Bản vẽ kết cấu công trình.
- Hình ảnh phối cảnh 3D ngoại thất.
- Bản vẽ điện + cấp thoát nước.
- Dự toán công trình: chi tiết chi phí xây dựng, thống kê vật tư công trình.
- Toàn bộ hồ sơ thiết kế công năng các phòng và kiến trúc đều được tư vấn hợp theo Phong thủy và tuổi của chủ đầu tư. Kích thước các phòng, chiều cao nhà và kích thước cửa đều theo kích thước phong thủy.
Chắc chắn đây sẽ là không gian mơ ước của nhiều người. Hãy đến với Maunhadepvn, chúng tôi sẽ vẽ lên toàn bộ ý tưởng của bạn, giúp bạn tạo nên một không gian sống tiện nghi và đầy ấm áp.
>> Xem thêm: Top 50 mẫu biệt thự vườn đẹp không thể bỏ qua.
Liên hệ tư vấn thiết kế xây dựng biệt thự.
Công ty TNHH MTV Tư Vấn Thiết Kế Xây Dựng Vinahouse.
Office: Số 79 ,Nguyễn Khuyến, P. Trảng Dài, TP Biên Hòa, Đồng Nai.
Tell : 091.7799.577 – 0973.979.155.
Email: vinahouse2012@gmail.com.
Trân trọng.








